Bungalow

 

Ein Bungalow ist insbesondere für ältere Menschen eine ideale Wohnform ohne Stufen und Treppen

 

 

 

Grundrissbeispiel 1

 

Eingeschossiger Bungalow

 

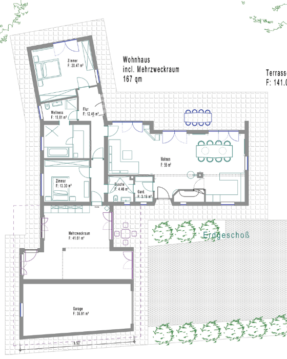
Grundrissbeispiel 2

 

Eingeschossiger Bungalow

Hier finden Sie mich

 

Architekt

Dipl. Ing. Roland Hänel
Am Baumer Berg 5
83714 Miesbach

 

Kontakt

 

Rufen Sie einfach an unter

 

+49 171 7321016 +49 171 7321016

 

oder nutzen Sie mein Kontaktformular.

Druckversion | Sitemap
© Architekt Dipl. Ing. Roland Hänel